Sara Sperati

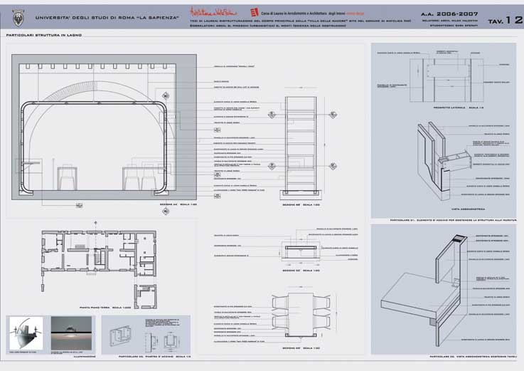
Ristrutturazione del Corpo Principale della Villa delle Macere, Comune di Matelica (MC)

Tesi di Laurea triennale in Arredamento e Architettura degli Interni
discussa il 22.02.2007
Universita' degli Studi di Roma "La Sapienza"  Facoltà di Architettura "Valle Giulia"

Relatore: Nilda Valentin